Roslagsgatan 48, 5tr Vasastan 4.5 rok 127 + 36 kvm Pris på förfrågan
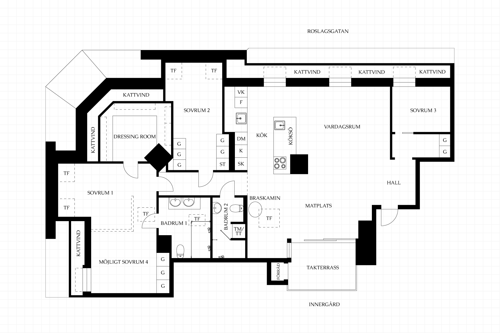
Högst upp i huset på Roslagsgatan 48 breder denna generösa vindsvåning ut sig, en bostad där arkitektur, materialval och funktion samspelar med en självklarhet. Med 127 kvm boyta och ytterligare 36 kvm under snedtak erbjuds en total golvyta om 163 kvm, fördelat på tre sovrum, två badrum och stora, öppna sällskapsytor.
Här möts man av ett lugn och en rymd som är svår att värja sig mot. Fransk fiskbensparkett löper genom rummen, färgsättningen går i varma beige toner och detaljer i mässing och sten adderar en diskret elegans. Ljuset faller in från flera håll, inte minst via takfönster och glaspartier mot terrassen där solen skiner från morgon till eftermiddag.
Kök och vardagsrum bildar hemmets hjärta, öppet och socialt med en naturlig uppdelning. Här lagar man mat samtidigt som gästerna samlas runt köksön, sitter vid matbordet eller tar en fördrink i soffan. Braskaminen tillför både värme och karaktär, och AC säkerställer ett behagligt inomhusklimat året om. Från vardagsrummet nås terrassen, en privat plats med härlig morgon- och förmiddagssol och utrymme för både grill och långa måltider under bar himmel.
Sovrummen är placerade med omsorg och erbjuder både avskildhet och funktion, en planlösning som passar väl för familjeliv. Master bedroom är rofyllt med tillhörande dressing room och god förvaring, medan de två övriga sovrummen ligger mer avskilt. I ett av rummen ryms en dubbelsäng under takfönster, med möjlighet att somna under stjärnhimlen.
Bostaden erbjuder två badrum, båda utförda med en genomgående hög standard. Det ena är en privat oas i direkt anslutning till master bedroom, utrustat med dubbeldusch och dubbelhandfat, medan det andra kombinerar stil och funktion med en praktisk tvättpelare. Badrummen är ritade från grunden med material från Bricmate, inredning i svartbetsad ek och armaturer i mässing.
Detta är en nyproducerad vindsvåning från 2021, endast bebodd av en ägare. Hiss finns hela vägen upp till våningsplanet, med plats för barnvagn, en bekvämlighet som förenklar vardagen. Komforten är genomgående hög, med vattenburen golvvärme i hela lägenheten (kompletterad med elslingor i badrum), motorstyrda mörkläggningsgardiner i samtliga takfönster samt en installerad AC-anläggning – en sällsynt och kostsam investering som kyler hela bostaden via aggregat i både vardagsrum och master bedroom.
En bostad där varje kvadratmeter är genomtänkt, med en tydlig känsla av kvalitet och lugn mitt i Vasastan.
Här möts man av ett lugn och en rymd som är svår att värja sig mot. Fransk fiskbensparkett löper genom rummen, färgsättningen går i varma beige toner och detaljer i mässing och sten adderar en diskret elegans. Ljuset faller in från flera håll, inte minst via takfönster och glaspartier mot terrassen där solen skiner från morgon till eftermiddag.
Kök och vardagsrum bildar hemmets hjärta, öppet och socialt med en naturlig uppdelning. Här lagar man mat samtidigt som gästerna samlas runt köksön, sitter vid matbordet eller tar en fördrink i soffan. Braskaminen tillför både värme och karaktär, och AC säkerställer ett behagligt inomhusklimat året om. Från vardagsrummet nås terrassen, en privat plats med härlig morgon- och förmiddagssol och utrymme för både grill och långa måltider under bar himmel.
Sovrummen är placerade med omsorg och erbjuder både avskildhet och funktion, en planlösning som passar väl för familjeliv. Master bedroom är rofyllt med tillhörande dressing room och god förvaring, medan de två övriga sovrummen ligger mer avskilt. I ett av rummen ryms en dubbelsäng under takfönster, med möjlighet att somna under stjärnhimlen.
Bostaden erbjuder två badrum, båda utförda med en genomgående hög standard. Det ena är en privat oas i direkt anslutning till master bedroom, utrustat med dubbeldusch och dubbelhandfat, medan det andra kombinerar stil och funktion med en praktisk tvättpelare. Badrummen är ritade från grunden med material från Bricmate, inredning i svartbetsad ek och armaturer i mässing.
Detta är en nyproducerad vindsvåning från 2021, endast bebodd av en ägare. Hiss finns hela vägen upp till våningsplanet, med plats för barnvagn, en bekvämlighet som förenklar vardagen. Komforten är genomgående hög, med vattenburen golvvärme i hela lägenheten (kompletterad med elslingor i badrum), motorstyrda mörkläggningsgardiner i samtliga takfönster samt en installerad AC-anläggning – en sällsynt och kostsam investering som kyler hela bostaden via aggregat i både vardagsrum och master bedroom.
En bostad där varje kvadratmeter är genomtänkt, med en tydlig känsla av kvalitet och lugn mitt i Vasastan.
Interiör
Rumsbeskrivning
Hall
Välkomnande hall med god plats för hallmöbel. Redan här möts man av bostadens lugna färgskala och genomgående materialval som sätter tonen för resten av hemmet.
Sällskapsrum
Generösa och öppna ytor där vardagsrum och matplats samspelar i en social och inbjudande helhet. Ljuset faller in från flera håll via takkupor, takfönster och glaspartier, och braskaminen tillför både värme och karaktär. AC bidrar till hög komfort året om.
Terrass
I direkt anslutning till sällskapsytorna ligger terrassen i soligt sydostläge, en ljuvlig plats med mycket sol. Här finns gott om utrymme för både sittgrupp och grill, perfekt för långa frukostar, middagar och sommarkvällar med utsikt över takåsarna. I anslutning till terrassen finns ett uteförråd för dynor etc.
Kök
Köket är integrerat med sällskapsytorna men samtidigt tydligt avgränsat. Släta luckor i varm ton möter en bänkskiva i kvarts och detaljer i mässing från Tapwell. Vitvaror från Siemens, inklusive en exklusiv diskmaskin och vinkyl. Beslag och belysning från Buster and Punch sätter en distinkt, genomtänkt prägel. Köksön blir en naturlig samlingspunkt med gott om arbetsyta och förvaring. Här finns gott om plats att umgås, laga mat och underhålla gäster, vare sig de sitter vid matbordet eller tar en fördrink i soffan. Köket är generöst och genomtänkt planerat, med dubbla hoar – en i köksön och en i den fasta köksuppställningen.
Badrum 2
Stilrent badrum i ljusa toner, utrustat med dusch, vägghängd toalett, kommod och en praktisk tvättpelare. En lugn och påkostad miljö.
Sovrum 1/ Master bedroom (möjligt att dela av)
Generöst och rofyllt sovrum med mjuk heltäckningsmatta, plats för dubbelsäng och ett vackert ljus tack vare takkupa och tre takfönster. Flexibel planlösning, möjlighet att skapa ytterligare ett sovrum eller arbetsrum för den som önskar. Här finns AC samt gott om plats för dubbelsäng och kompletterande möblering. Generös garderobsvägg och anslutande dressing room samt badrum en suite skapar en lyxig miljö av internationell klass.
Dressing room
I anslutning till master bedroom ligger ett rymligt dressing room med utmärkta förvaringsmöjligheter och plats för parets kläder och skor.
Badrum en suite
Elegant badrum med dubbla duschar, dubbla handfat med kommod, vägghängd toalett och badrumsskåp med spegel. Praktiskt placerat i direkt anslutning till master bedroom.
Sovrum 2
Ljust och harmoniskt sovrum med plats för dubbelsäng, fint placerad under takfönster där man kan blicka upp mot stjärnhimlen. Ett rum som passar lika bra som sovrum som gästrum. Generös förvaring i ett flertal garderober och ett välinrett städskåp.
Sovrum 3
Ytterligare ett sovrum med lugnt läge och flexibel användning, perfekt som barnrum, arbetsrum eller gästrum. Sovrummet går att slå samman med angränsande utrymme som i dagsläget nyttjas som kapprum.
Förråd
Till lägenheten hör nyttjanderätt till ett rymligt källarförråd.
Fakta
Upplåtelseform
Bostadsrätt
Adress
Roslagsgatan 48, 5tr
Område
Vasastan, Stockholm
Förening
Brf Staren 2
Lgh.nr
052 / 1501
Bo & biarea
127 + 36 m²
Areakälla
Enligt uppmätning
Antal rum
4.5 rum och kök, varav 3–4
sovrum
Våningsplan
Våning 5 av 5.
Hiss finns.
Balkong
Ja
Månadsavgift
4 155 kr/mån
I angiven avgift ingår värme, vatten, kabel TV.
Obligatoriskt tillägg om 150kr/mån för bredband tillkommer.
Byggnad
Byggnadstyp
Flerbostadshus
Byggnadsår
1888
Fönster
3-glas
Uppvärmning
Fjärrvärme
Ventilation
Självdrag
Energideklaration
Status
Utförd (2022-01-15)
Primärenergital
121 kWh/m2 och år
Energiklass
E
Förening
Om föreningen
Brf Staren 2 är en äkta bostadsrättsförening och upplåter 41 lägenheter med bostadsrätt samt fyra lokaler upplåtna med hyresrätt som årligen inbringar ca 925 000 kr (ÅR 2024).
Föreningen äger marken.
Föreningen har lån om ca 5 Mkr vilket ger en skuldsättningsgrad om endast 1900 kr lån/kvm. Föreningen har likvida medel om ca 1 625 000 kr. (Enligt årsredovisning 2024)
Besök gärna föreningens hemsida: https://www.brfstaren2.se/
Föreningen äger marken.
Föreningen har lån om ca 5 Mkr vilket ger en skuldsättningsgrad om endast 1900 kr lån/kvm. Föreningen har likvida medel om ca 1 625 000 kr. (Enligt årsredovisning 2024)
Besök gärna föreningens hemsida: https://www.brfstaren2.se/
Namn
Brf Staren 2
Adress
Roslagsgatan 48
Byggnadsår
1888
Byggnadstyp
Flerbostadshus
Org.form
Bostadsrätt
Org.nummer
702002-1221
Hemsida
Föreningens ekonomi
Inga beslutade avgiftsförändringar (avstämt med styrelsen 2026-04-04).
Äkta/oäkta förening?
Äkta
Antal lägenheter
41 st
Antal lokaler
4 st
TV/bredband
Kabel-TV via Tele2, samt Bahnhof fiber 1000mbit/s
Överlåtelseavgift
1480 kr
(betalas av
köpare)
Pantsättningsavgift
592 kr
Tillåts juridisk person?
Nej
Tillåts delat ägande?
Ja, minsta andel 10%
Äger föreningen marken?
Ja
Renoveringar
2005 – Innergård
2008 – Tak
2009 – Fasad
2011 – Trapphus
2011 – Säkerhetsdörrar
2016 – Fönsterrenovering
2019 – Nytt gårdsbjälklag
2019 – Källarrenovering
2019 – Byte av samtliga avloppsstammar i källare
2020 – Ny elservis
2021 – Tre nya vindslägenheter byggdes med hjälp av Gleipnergruppen
2021 – Installation av nya hissar
2021 – Tak
2021 - Källaren renoverades
2021- Säkerhetsdörrar
2025- Nyrenoverade portar och nytt låssystem
Kommande renoveringar:
2026 planeras reparation av
marmorgolv i trapphuset Roslagsgatan 48
2008 – Tak
2009 – Fasad
2011 – Trapphus
2011 – Säkerhetsdörrar
2016 – Fönsterrenovering
2019 – Nytt gårdsbjälklag
2019 – Källarrenovering
2019 – Byte av samtliga avloppsstammar i källare
2020 – Ny elservis
2021 – Tre nya vindslägenheter byggdes med hjälp av Gleipnergruppen
2021 – Installation av nya hissar
2021 – Tak
2021 - Källaren renoverades
2021- Säkerhetsdörrar
2025- Nyrenoverade portar och nytt låssystem
Kommande renoveringar:
2026 planeras reparation av
marmorgolv i trapphuset Roslagsgatan 48
Gemensamma utrymmen
Föreningens gemensamhetsutrymmen är: cykelrum, tvättstuga, innergård med grill.
Tvättstugan består tre tvättmaskiner och en tumlare och ett stort torkrum.
Det finns källarförråd till varje lägenhet.
Tvättstugan består tre tvättmaskiner och en tumlare och ett stort torkrum.
Det finns källarförråd till varje lägenhet.
Ekonomi
Månadsavgift
4 155 kr/mån. I angiven avgift ingår värme, vatten, kabel TV.
Obligatoriskt tillägg om 150kr/mån för bredband tillkommer.
Andel i föreningen
5.78%
Andel av årsavgift
5.64%
Pantsatt
Ja
Driftskostnader per år
Hushållsel
6 000 kr
Försäkring
3 600 kr
Summa
9 600 kr
Område
Allmänt
Här bor du i ett av Vasastans mest levande och samtidigt harmoniska kvarter, med en fin balans mellan stadspuls och grönska. Roslagsgatan har en egen rytm, lite lugnare än de mest trafikerade stråken men med ett rikt utbud precis runt hörnet.
Kvarteren präglas av en personlig och välkurerad mix av caféer, restauranger och små butiker. Här finns favoriter som Brasserie Balzac, Pom & Flora, Meno Male och Mahalo, platser som ger området en tydlig kvarterskänsla och gör det enkelt att låta vardagen flyta ut i något mer.
Samtidigt är närheten till både Odenplan och Stureplan en stor tillgång, med hela innerstadens utbud inom bekvämt räckhåll. Här bor man med ett läge som fungerar lika bra till vardags som till helg.
För den som uppskattar natur och rörelse ligger Hagaparken och Lill-Jansskogen bara några minuter bort, med löpspår, promenadstråk och öppna landskap. Vid Brunnsviken finns möjlighet till bad, paddling och utegym, medan Vanadislunden erbjuder en grön oas mitt i staden.
Serviceutbudet är mycket gott, med välsorterade matbutiker som ICA Baronen och ICA Nära Roslagstull på kort avstånd. Kommunikationerna är utmärkta, med tunnelbana, bussar och pendeltåg inom några minuters promenad, vilket gör det enkelt att ta sig vidare genom staden.
Ett läge som kombinerar det bästa av två världar, stadens energi och naturens lugn, i ett kvarter som känns både levande och långsiktigt trivsamt.
Kvarteren präglas av en personlig och välkurerad mix av caféer, restauranger och små butiker. Här finns favoriter som Brasserie Balzac, Pom & Flora, Meno Male och Mahalo, platser som ger området en tydlig kvarterskänsla och gör det enkelt att låta vardagen flyta ut i något mer.
Samtidigt är närheten till både Odenplan och Stureplan en stor tillgång, med hela innerstadens utbud inom bekvämt räckhåll. Här bor man med ett läge som fungerar lika bra till vardags som till helg.
För den som uppskattar natur och rörelse ligger Hagaparken och Lill-Jansskogen bara några minuter bort, med löpspår, promenadstråk och öppna landskap. Vid Brunnsviken finns möjlighet till bad, paddling och utegym, medan Vanadislunden erbjuder en grön oas mitt i staden.
Serviceutbudet är mycket gott, med välsorterade matbutiker som ICA Baronen och ICA Nära Roslagstull på kort avstånd. Kommunikationerna är utmärkta, med tunnelbana, bussar och pendeltåg inom några minuters promenad, vilket gör det enkelt att ta sig vidare genom staden.
Ett läge som kombinerar det bästa av två världar, stadens energi och naturens lugn, i ett kvarter som känns både levande och långsiktigt trivsamt.